??????3月,春回大地,萬物復蘇。在萬物競相煥發新容顏時,羊亭河濕地公園二期同樣也正在抓緊時間進行“美容”。

??????環翠區羊亭鎮作為中德生態城核心區域,在二期公園建設、提升中將采用雨水花園的設計理念,利用下凹式綠地、透水鋪裝收集雨水,涵養地下水。在此次升級改造中,公園內將設有海綿城市科普區,將海綿城市主要理念進行景觀微縮化科普展示。

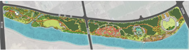
??????二期公園自東向西將設置活力舞臺、荷塘月色、梅嶺雪鄉、綠茵翠谷、杉林花海五個分區,打造活力舞臺、荻花蕩、馬褂木林、濱河棧道、梅花谷、陽光草坪、林下花境、紅葉谷等多個景觀節點。通過合理的濱水空間設計,不僅為游客提供親水體驗,還為鳥類等動物提供一定的棲息覓食環境,使人與自然的關系更加和諧。建成后,將為北側新材料研究中心、港頭和于家夼安置區、城建蘭庭等周邊居民提供配套休閑場所,預計今年年底完工。(來源:羊亭在線)




